門前仲町の住宅

詳細を見る

門前仲町の住宅

緑化を想定したファサード

詳細を見る

緑化を想定したファサード

白を基調としたリビング

詳細を見る

白を基調としたリビング

天井高さ2.9mのリビング

詳細を見る

天井高さ2.9mのリビング

サインのように印象的な外観

詳細を見る

サインのように印象的な外観

柔らかい光が注ぐエントランス

詳細を見る

柔らかい光が注ぐエントランス

使い勝手の良いフィッティングルーム

詳細を見る

使い勝手の良いフィッティングルーム

フィッティングルーム,主寝室

詳細を見る

フィッティングルーム,主寝室

門前仲町の住宅 1階平面図

詳細を見る

門前仲町の住宅 1階平面図

門前仲町の住宅 2階平面図

詳細を見る

門前仲町の住宅 2階平面図

門前仲町の住宅 3階平面図

詳細を見る

門前仲町の住宅 3階平面図

門前仲町の住宅 立面図

詳細を見る

門前仲町の住宅 立面図

素材

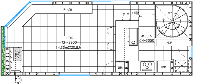
門前仲町の住宅 2階平面図

門前仲町の住宅 2階平面図

お気に入りをクリック

このエントリーをはてなブックマークに追加
門前仲町の住宅の2階平面図です。 <この住宅を設計した建築家> LEVEL Architects(レベルアーキテクツ)

この写真「門前仲町の住宅 2階平面図」はfeve casa の参加建築家「中村和基 出原賢一/LEVEL Architects」が設計した「門前仲町の住宅」写真です。「間取り 」カテゴリーに投稿されています。

Q&A教えて建築家

この写真に対して、設計をした建築家に質問ができます。
この住宅の他の写真

門前仲町の住宅

暮らし方

建築家

中村和基 出原賢一/LEVEL Architects

この建築家のすべての投稿を見る

お問い合せ 資料請求

人気ランキング

もっと見る
  • 善福寺川の家
    14 24
  • さくら別邸
    13 1
  • 富士見ヶ丘の家
    12 0

素足で歩いたときのやわらかな感触や、ほのかに香るい草の匂い。 畳のある空間には、洋室とはまた違う心地よさがあります。 かつては和室の象徴だった畳ですが、近年は住まいのスタイルに合わせて取り入れ方も多...

4290茶室・想像力・和モダン・リラックス・木の天井・縁あり畳

皆さんは窓についてどれくらい意識していますか。 窓は、住まいの明るさや開放感、居心地にも大きく影響します。 窓の役割を意識することで、より心地よい住まいづくりにつながるはずです。

3810窓・吹き抜けのある家・半屋外・窓デザイン・動線・大開口・太陽・自然光