皆野の家/2階リビングに繋がる広い外部デッキのある家

詳細を見る

皆野の家/2階リビングに繋がる広い外部デッキのある家

シンプル和モダンの落ち着いたリビングルーム

詳細を見る

シンプル和モダンの落ち着いたリビングルーム

リビング脇の4.5畳の小上がりの和室の茶の間

詳細を見る

リビング脇の4.5畳の小上がりの和室の茶の間

小上がり和室より吹き抜けリビングを望む

詳細を見る

小上がり和室より吹き抜けリビングを望む

ロフトベッドのある子ども室

詳細を見る

ロフトベッドのある子ども室

窓のない外観?

詳細を見る

窓のない外観?

台所よりリビング・茶の間・外部デッキを望む

詳細を見る

台所よりリビング・茶の間・外部デッキを望む

玄関吹き抜けの螺旋階段

詳細を見る

玄関吹き抜けの螺旋階段

皆野の家/1階平面図

詳細を見る

皆野の家/1階平面図

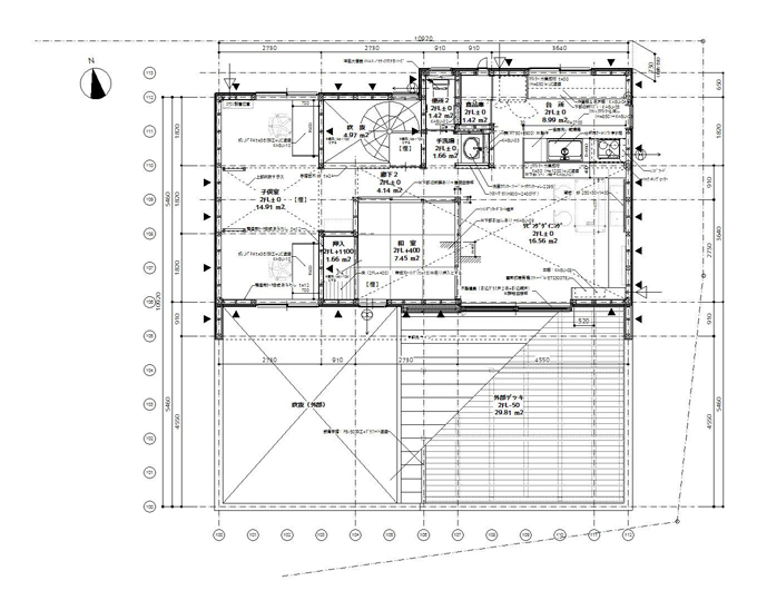
皆野の家/2階平面図

詳細を見る

皆野の家/2階平面図

リビング〜外部デッキの全開放木製引戸

詳細を見る

リビング〜外部デッキの全開放木製引戸

素材

皆野の家/2階平面図

皆野の家/2階平面図

お気に入りをクリック

このエントリーをはてなブックマークに追加
広さ18畳の外部デッキが自慢の2階。ここからは夏に花火見物ができます。時にはここでサッカーのドリブルをしているとか…。洗面所が1階のプライベート空間にあるので階段を上がった脇に手洗場を設置。これが意外と便利で気に入って頂きました。2階は蓄熱暖房とし全室暖房とした一体空間としております。

この写真「皆野の家/2階平面図」はfeve casa の参加建築家「川端貴雄/かくれんぼ建築設計室」が設計した「皆野の家/2階リビングに繋がる広い外部デッキのある家」写真です。「間取り 」カテゴリーに投稿されています。

Q&A教えて建築家

この写真に対して、設計をした建築家に質問ができます。
この住宅の他の写真

皆野の家/2階リビングに繋がる広い外部デッキのある家

建築家

川端貴雄/かくれんぼ建築設計室

この建築家のすべての投稿を見る

お問い合せ 資料請求

人気ランキング

もっと見る
  • 駅前の家
    18 1
  • 貫井の家
    15 13
  • 善福寺川の家
    13 24

素足で歩いたときのやわらかな感触や、ほのかに香るい草の匂い。 畳のある空間には、洋室とはまた違う心地よさがあります。 かつては和室の象徴だった畳ですが、近年は住まいのスタイルに合わせて取り入れ方も多...

3150茶室・想像力・和モダン・リラックス・木の天井・縁あり畳

皆さんは窓についてどれくらい意識していますか。 窓は、住まいの明るさや開放感、居心地にも大きく影響します。 窓の役割を意識することで、より心地よい住まいづくりにつながるはずです。

3280窓・吹き抜けのある家・半屋外・窓デザイン・動線・大開口・太陽・自然光