皆野の家/2階リビングに繋がる広い外部デッキのある家

詳細を見る

皆野の家/2階リビングに繋がる広い外部デッキのある家

シンプル和モダンの落ち着いたリビングルーム

詳細を見る

シンプル和モダンの落ち着いたリビングルーム

リビング脇の4.5畳の小上がりの和室の茶の間

詳細を見る

リビング脇の4.5畳の小上がりの和室の茶の間

小上がり和室より吹き抜けリビングを望む

詳細を見る

小上がり和室より吹き抜けリビングを望む

ロフトベッドのある子ども室

詳細を見る

ロフトベッドのある子ども室

窓のない外観?

詳細を見る

窓のない外観?

台所よりリビング・茶の間・外部デッキを望む

詳細を見る

台所よりリビング・茶の間・外部デッキを望む

玄関吹き抜けの螺旋階段

詳細を見る

玄関吹き抜けの螺旋階段

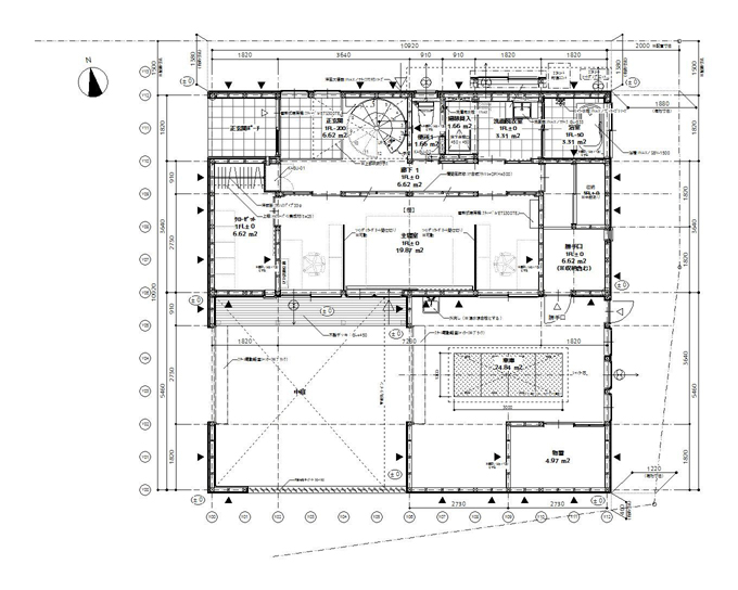
皆野の家/1階平面図

詳細を見る

皆野の家/1階平面図

皆野の家/2階平面図

詳細を見る

皆野の家/2階平面図

リビング〜外部デッキの全開放木製引戸

詳細を見る

リビング〜外部デッキの全開放木製引戸

素材

皆野の家/1階平面図

皆野の家/1階平面図

お気に入りをクリック

このエントリーをはてなブックマークに追加
2階リビングのため1階には寝室と水廻り(浴室・洗面脱衣室・便所)とのプライベート空間としております。車好きのご主人さまのために床下ピットのあるインナーガレージが…そして寝室脇のご主人の書斎からいつも愛車をみることができます。

この写真「皆野の家/1階平面図」はfeve casa の参加建築家「川端貴雄/かくれんぼ建築設計室」が設計した「皆野の家/2階リビングに繋がる広い外部デッキのある家」写真です。「間取り 」カテゴリーに投稿されています。

Q&A教えて建築家

この写真に対して、設計をした建築家に質問ができます。
この住宅の他の写真

皆野の家/2階リビングに繋がる広い外部デッキのある家

建築家

川端貴雄/かくれんぼ建築設計室

この建築家のすべての投稿を見る

お問い合せ 資料請求

人気ランキング

もっと見る
  • 駅前の家
    19 1
  • 柔らかな風が通る連格子・モダン和風の家
    13 37
  • 雪見障子と縁側と景色のある和室
    13 0

素足で歩いたときのやわらかな感触や、ほのかに香るい草の匂い。 畳のある空間には、洋室とはまた違う心地よさがあります。 かつては和室の象徴だった畳ですが、近年は住まいのスタイルに合わせて取り入れ方も多...

6470茶室・想像力・和モダン・リラックス・木の天井・縁あり畳

皆さんは窓についてどれくらい意識していますか。 窓は、住まいの明るさや開放感、居心地にも大きく影響します。 窓の役割を意識することで、より心地よい住まいづくりにつながるはずです。

4870窓・吹き抜けのある家・半屋外・窓デザイン・動線・大開口・太陽・自然光